Бустодром - экосистема для девелопера

CRM, шахматка, фин. блок, ипотека, интеграци и лучшие практики агентств и застройщиков

Посетите нашего партнера, если вы девелопер

Подробнее

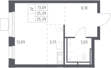
Студия № 343, 25.39 м2 с отделкой 17 эт.
в ЖК Томилино Парк

Выхино 25 мин Котельники 15 мин

Цена: 4 727 756 руб.

за метр: 186 205 руб. м2

  • Корпус 5.4
  • Секция 1
  • Номер помещения343
  • Студия
  • Этаж 17
  • Тип планировки Студии
  • Отделка с отделкой
  • Высота потолков 3.20
  • Кол-во уборных 1
  • Очередь 5
  • Сдача 1 кв 2025 г

Вы можете купить сразу или в ипотеку в онлайн, этот объект под номером 343 на 17 этаже с отделкой, студия. Сдача объекта застройщиком планируется 1 кв 2025 г. Известно, что высота потолков начинается от 3.20.

Online-ипотека для Томилино Парк

Оформите ипотеку в онлайне прямо сейчас. Подайте заявку на подбор, нажав кнопку Подать заявку
Первичное жилье
Рефинансирование
Стандартная ипотека
Семейная ипотека
Военная ипотека
Пандемия COVID-19
20%
Ставка от
- %
Ежемесячный платеж
-
Сумма кредита
3 346 476 руб.

Необходима консультацию?

Мы поможем выбрать из 300 комплексов под жильё или инвестиции, лучшее
Перезвоните мне