Бустодром - экосистема для девелопера

CRM, шахматка, фин. блок, ипотека, интеграци и лучшие практики агентств и застройщиков

Посетите нашего партнера, если вы девелопер

Подробнее

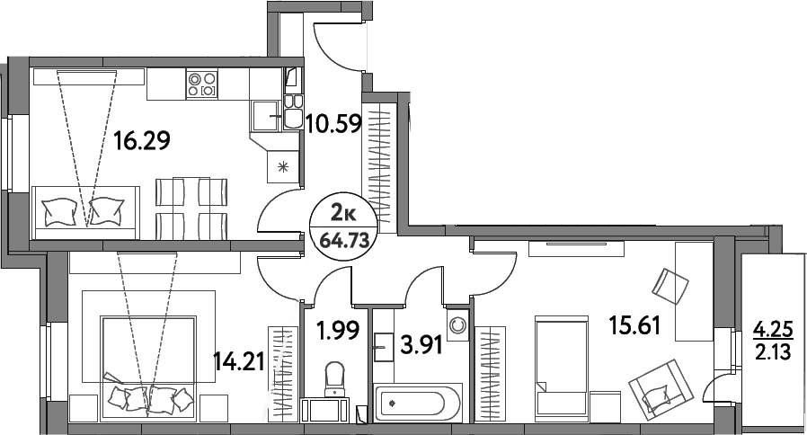
3-комнатная квартира № 141, 62.60 м2 без отделки 14 эт.
в ЖК Дом на Сиреневой

Щелковская 30 мин

Цена: 8 706 185 руб.

за метр: 139 076 руб. м2

  • Корпус 62А
  • Секция 1
  • Номер помещения141
  • Комнат 3
  • Этаж 14
  • Тип планировки 3Е-к.кв
  • Отделка без отделки
  • Высота потолков 2.76
  • Кол-во уборных 2
  • Очередь 1
  • Сдача 3 кв 2023 г

Вы можете купить сразу или в ипотеку в онлайн, этот объект под номером 141 на 14 этаже без отделки, 3-комнатная квартира. Сдача объекта застройщиком планируется 3 кв 2023 г. Известно, что высота потолков начинается от 2.76.

Online-ипотека для Дом на Сиреневой

Оформите ипотеку в онлайне прямо сейчас. Подайте заявку на подбор, нажав кнопку Подать заявку
Первичное жилье
Рефинансирование
Стандартная ипотека
Семейная ипотека
Военная ипотека
Пандемия COVID-19
20%
Ставка от
- %
Ежемесячный платеж
-
Сумма кредита
3 279 456 руб.

Необходима консультацию?

Мы поможем выбрать из 300 комплексов под жильё или инвестиции, лучшее
Перезвоните мне