Бустодром - экосистема для девелопера

CRM, шахматка, фин. блок, ипотека, интеграци и лучшие практики агентств и застройщиков

Посетите нашего партнера, если вы девелопер

Подробнее

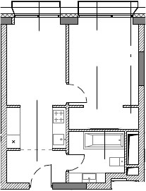
1-комнатная квартира № 224, 38.18 м2 без отделки 20 эт.
в ЖК Very

Фонвизинская 10 мин Улица Милашенкова 10 мин Петровско-Разумовская 15 мин ВДНХ 10 мин

Цена: 17 500 000 руб.

за метр: 458 355 руб. м2

  • Корпус 1
  • Секция 1
  • Номер помещения224
  • Комнат 1
  • Этаж 20
  • Тип планировки 1-к.кв
  • Отделка без отделки
  • Высота потолков 2.86
  • Кол-во уборных 1
  • Очередь 1
  • Сдача 1 кв 2024 г

Вы можете купить сразу или в ипотеку в онлайн, этот объект под номером 224 на 20 этаже без отделки, 1-комнатная квартира. Сдача объекта застройщиком планируется 1 кв 2024 г. Известно, что высота потолков начинается от 2.86.

Online-ипотека для Very

Оформите ипотеку в онлайне прямо сейчас. Подайте заявку на подбор, нажав кнопку Подать заявку
Первичное жилье
Рефинансирование
Стандартная ипотека
Семейная ипотека
Военная ипотека
Пандемия COVID-19
20%
Ставка от
- %
Ежемесячный платеж
-
Сумма кредита
7 041 072 руб.

Необходима консультацию?

Мы поможем выбрать из 300 комплексов под жильё или инвестиции, лучшее
Перезвоните мне