Бустодром - экосистема для девелопера

CRM, шахматка, фин. блок, ипотека, интеграци и лучшие практики агентств и застройщиков

Посетите нашего партнера, если вы девелопер

Подробнее

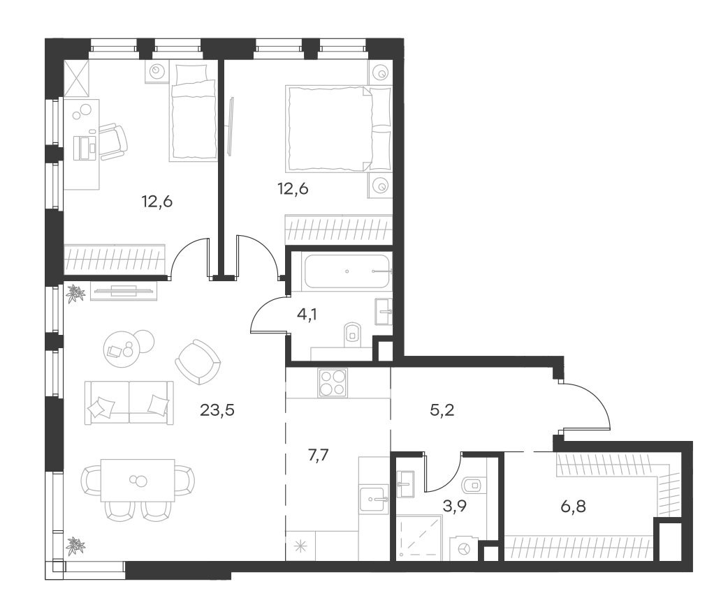
3-комнатная квартира № 61, 76.40 м2 без отделки 6 эт.
в ЖК Level Селигерская

Селигерская 10 мин Верхние Лихоборы 15 мин

Цена: 16 226 480 руб.

за метр: 212 388 руб. м2

  • Корпус 1
  • Секция 1
  • Номер помещения61
  • Комнат 3
  • Этаж 6
  • Тип планировки 3Е-к.кв
  • Отделка без отделки
  • Высота потолков 2.80
  • Кол-во уборных 3
  • Очередь 1
  • Сдача 3 кв 2024 г

Вы можете купить сразу или в ипотеку в онлайн, этот объект под номером 61 на 6 этаже без отделки, 3-комнатная квартира. Сдача объекта застройщиком планируется 3 кв 2024 г. Известно, что высота потолков начинается от 2.80.

Online-ипотека для Level Селигерская

Оформите ипотеку в онлайне прямо сейчас. Подайте заявку на подбор, нажав кнопку Подать заявку
Первичное жилье
Рефинансирование
Стандартная ипотека
Семейная ипотека
Военная ипотека
Пандемия COVID-19
20%
Ставка от
- %
Ежемесячный платеж
-
Сумма кредита
5 037 091 руб.

Необходима консультацию?

Мы поможем выбрать из 300 комплексов под жильё или инвестиции, лучшее
Перезвоните мне