Бустодром - экосистема для девелопера

CRM, шахматка, фин. блок, ипотека, интеграци и лучшие практики агентств и застройщиков

Посетите нашего партнера, если вы девелопер

Подробнее

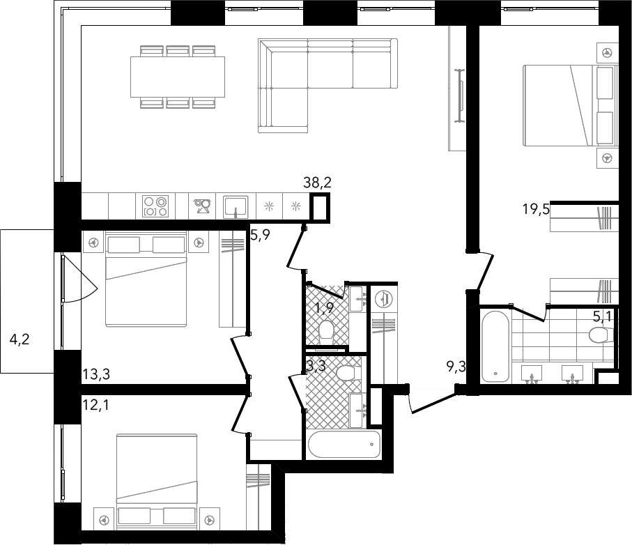
4-комнатная квартира № 117, 108.61 м2 без отделки 14 эт.
в ЖК Republic

Улица 1905 года 15 мин Менделеевская 20 мин

Цена: 63 669 884 руб.

за метр: 586 225 руб. м2

  • Корпус B5
  • Секция 1
  • Номер помещения117
  • Комнат 4
  • Этаж 14
  • Тип планировки 4Е-к.кв
  • Отделка без отделки
  • Высота потолков 3.10
  • Кол-во уборных 3
  • Очередь 1
  • Сдача 3 кв 2025 г

Вы можете купить сразу или в ипотеку в онлайн, этот объект под номером 117 на 14 этаже без отделки, 4-комнатная квартира. Сдача объекта застройщиком планируется 3 кв 2025 г. Известно, что высота потолков начинается от 3.10.

Online-ипотека для Republic

Оформите ипотеку в онлайне прямо сейчас. Подайте заявку на подбор, нажав кнопку Подать заявку
Первичное жилье
Рефинансирование
Стандартная ипотека
Семейная ипотека
Военная ипотека
Пандемия COVID-19
20%
Ставка от
- %
Ежемесячный платеж
-
Сумма кредита
14 743 881 руб.

Необходима консультацию?

Мы поможем выбрать из 300 комплексов под жильё или инвестиции, лучшее
Перезвоните мне