Бустодром - экосистема для девелопера

CRM, шахматка, фин. блок, ипотека, интеграци и лучшие практики агентств и застройщиков

Посетите нашего партнера, если вы девелопер

Подробнее

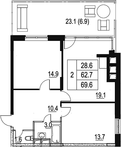
2-комнатная квартира № 17, 62.70 м2 без отделки 1 эт.
в ЖК Сказка

Волоколамская 30 мин Строгино 30 мин

Цена: 13 103 940 руб.

за метр: 208 994 руб. м2

  • Корпус 52
  • Секция 1
  • Номер помещения17
  • Комнат 2
  • Этаж 1
  • Тип планировки 2-к.кв
  • Отделка без отделки
  • Высота потолков 3.00
  • Кол-во уборных 2
  • Очередь 1
  • Сдача 2 кв 2023 г

Вы можете купить сразу или в ипотеку в онлайн, этот объект под номером 17 на 1 этаже без отделки, 2-комнатная квартира. Сдача объекта застройщиком планируется 2 кв 2023 г. Известно, что высота потолков начинается от 3.00.

Online-ипотека для Сказка

Оформите ипотеку в онлайне прямо сейчас. Подайте заявку на подбор, нажав кнопку Подать заявку
Первичное жилье
Рефинансирование
Стандартная ипотека
Семейная ипотека
Военная ипотека
Пандемия COVID-19
20%
Ставка от
- %
Ежемесячный платеж
-
Сумма кредита
7 915 476 руб.

Необходима консультацию?

Мы поможем выбрать из 300 комплексов под жильё или инвестиции, лучшее
Перезвоните мне